Teton County Wyoming Housing Department Homepage
Search

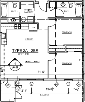
Unit 210 Grove Phase 1, 250 Scott Lane

Exterior Picture of the Grove Apartment Complex

**Important! To apply for this home, you must have completed the Online Intake Form prior to October 28, 2020. Please do not make any changes to your essential data during the weighted drawing period or you will not be eligible to apply.**

Grove Phase 1, Unit 210: 

  • 2-bedroom 2-bathroom, 865 square feet
  • Range, refrigerator, dishwasher, microwave, large deck, storage, and washer & dryer.
  • NO PETS ALLOWED
  • Income Range: 0% to 50% of the Median Family Income -see income limits listed below
  • Occupancy Requirement: two (2) or more people
  • Monthly rental amount is $664, includes electricity, water, sewer, and trash. 
  • At least one adult in the household must work a minimum of 1,560 hours per year. Please read the policies to enter any weighted drawing: Housing Department Rules & Regulations, Section 4: Weighted Drawing.
  • Rental term is estimated to begin January, 2021. First month's rent + security deposit will be due at signing. The security deposit is $1000. The total due at signing is $1,664.
  • Deadline to Apply: Tuesday, November 10th by 4:00 PM. No late or incomplete entries will be accepted. If selected first for this unit you will be notified by phone. All others will be sent an email notice. 
  • All forms needed to enter this drawing are here, under "Rentals - Weighted Drawing Entry Form

Floor Plan:

210

Income Limits - households may not earn more than the limits listed below:

Two Person Household:     $0 to $44,280

Three Person Household:  $0 to $49,815

Four Person Household:    $0 to $55,350

Five Person Household:     $0 to $59,778

Calculation of Income:

Household income is based on the current income earned by all intended adult occupants of the rental unit at the time of weighted drawing using the current household income to estimate an annual (12 month) income basis. Households must use their current income and may not make changes or adjustments to earnings in order to fit within the income range.

Business income of a qualifying Household is calculated using an average of the last three (3) years of income on the business’ tax returns. A year to date profit and loss determination will also be used to calculate business income. If the business has not been operating for three (3) years, the Housing Department will average income over the time the business has been operating.

Please contact the Housing Department if you have any questions or need assistance completing the entry forms. housing@tetoncountywy.gov or 307-732-0867.

  1. Popular Pages

Contact Us

  1. Physical Address:

  2. 320 South King Street

  3. Jackson, WY 83001

  4. Directions

  5.  

  1. Phone: 307-732-0867

  2. Fax: 307-734-3864

  3.  

  4. P.O. Box 714

  5. Jackson, WY 83001

  1. Logo Housing White.png

About Us

  1. The Housing Department works to create health housing solutions so that our workforce can live, spend, and volunteer locally, maintaining the community character we all cherish.  Learn more about our mission by visiting our About page.

Government Websites by CivicPlus®
Arrow Left Arrow Right
Slideshow Left Arrow Slideshow Right Arrow